中標津
【中標津エリア】一年で今だけ!3店舗合同 新春特価の家 大放出フェア

| 開催日 | 1月9日(木)~31(土) |
|---|---|
| 時間 | 10:00 ~ 17:00 |
| 会場 | 中標津町東16条南8丁目/根室市鳴海町4丁目 |
こちらのイベントは終了いたしました
ご来場ありがとうございました
🎍 新春大祭典
“家を買うなら、このタイミングが一年で最もお得”。
ウッディークラフト 3店舗合同 で開催される特別イベントでは、
新春だけの 特別価格 をご用意しています。
完成済みモデルハウスを実際に見て、
住まいの「本当の良さ」を体感できる絶好の機会です。
\ まだ検討中の方も歓迎! /
このフェアが特別な理由
① 新春限定の特別価格で購入できる
通常価格からの大幅値引きは 1月31日までのお申込み限定。
一年の中でも“今しかない”価格で、理想の住まいが手に入ります。
② 完成済み物件だから、見てそのまま暮らしをイメージできる
間取り・広さ・光の入り方まで、写真では伝わらない“リアルな住み心地”を体感できます。
③ 即入居OK。引き渡しまでがスピーディー
建築期間が不要なので、
「転勤・入学・新生活に間に合わせたい」という方にも最適です。
④ 家具・照明・エアコンなどがついて初期費用がグッとお得に
物件によっては、生活に必要なアイテムがほぼ揃っているため、
“買ってすぐ住める” のも大きな魅力。
\ まだ検討中の方も歓迎! /
■開催期間
2026年 1月9日(木) 〜 1月31日(土)
お値引きは1月31日までのお申込みが対象です。
お家の見学だけでも大歓迎!
まずはお気軽にご予約ください。
■ PICK UP:注目物件
家事・収納・生活動線。
毎日の「ちょっとした不便」を徹底的に減らすことで、
無理なく、気持ちよく暮らせる住まいを実現しました。
コンパクトな設計でありながら、
4LDKのゆとりある間取りを確保。
家族それぞれのプライベート空間も大切にできます。
“ちょうど良い暮らし”を求める方に、
ぜひ一度体感していただきたい人気モデルです。

\ まだ検討中の方も歓迎! /
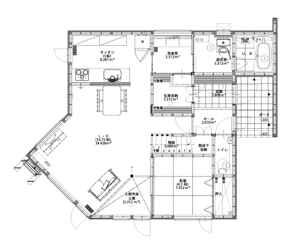
□間取り 4LDK


| 販売価格 | 3650万円 |
|---|---|
| 構造 | 木造 地上2階建 |
| 用途地域 | 第2種中高層住居専用地域 |
| 都市計画 | 都市計画区域内 |
| 建ぺい率 | 60% |
| 容積率 | 200% |
| 土地面積 | 253.26m²(76坪) |
| 延床面積 | 102.21㎡(31坪) |
| 土地権利 | 所有権 |
| 引渡し | 要相談 |
| 学区 | 中標津町立中標津東小学校 中標津町立広陵中学校 |
| 交通 | バス「東19南7」 約「徒歩4分」 |
会場:中標津町東16条南8丁目
\ まだ検討中の方も歓迎! /

落ち着いた色合いと、木の質感が心地よい、大人のためのナチュラルデザイン住宅。
室内に入った瞬間、やさしい光と素材感が、自然と気持ちを整えてくれる。
そんな空間づくりを大切にしています。
リビング・ダイニングは、
家族が自然と集まりたくなる居心地の良さ。
シンプルながらも飽きのこないデザインで、暮らしを重ねるほどに味わいが増していきます。
「住んだその日から、心地いい。」
そんな暮らしを叶える一棟です。

\ まだ検討中の方も歓迎! /
□間取り 4LDK


| 販売価格 | 3,780万円 |
|---|---|
| 構造 | 木造 地上2階建 |
| 用途地域 | 第一種住居地域 |
| 都市計画 | 都市計画区域内 |
| 建ぺい率 | 60% |
| 容積率 | 200% |
| 土地面積 | 301.02m²(90.87坪) |
| 延床面積 | 116.43㎡(35.14坪) |
| 土地権利 | 所有権 |
| 引渡し | 要相談 |
| 学区 | 花咲小学校 光洋中学校 |
| 交通 | JR根室本線「根室」駅 「栄町」停 徒歩1分~3分 徒歩1分 |
| 備考 | ※建物代金には家具を含みます |
会場:根室市鳴海町4丁目14
\ まだ検討中の方も歓迎! /



