人気の平屋 完成見学会を開催します!!/ 【別海町 平屋見学会】
中標津・釧路・北見で新築・注文住宅をお考えの皆様、こんにちは。
㈱ウッディークラフト中標津店のホームアドバイザーの小玉です。
皆さま、中春別にて平屋の見学会がございます!!
9月23日(金)~9月25日(日)に開催されます。
平屋の見学会って、数が多くないので是非お越しくださいませ!
外観は可愛らしい三角屋根です!
淡いグリーンの玄関扉がアクセントになっています!

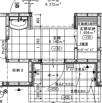
玄関に手洗いを設置しております!
やはりここ数年は、玄関の近くに手洗いを付けたいというご要望が増えました!!
しっかりシューズクロークも設けております!
靴棚と、コートをかけるハンガーパイプも設置しております。

おうちの真ん中にファミリークローゼットがある間取りです!
お支度も家事も、お家の真ん中にファミクロがあることにより、とても便利な導線になります!!!
洗面室と脱衣室を分けたい!!!という方にも見てもらいたいですね!!
平屋の人気が凄く高まっている事を肌で感じます。
皆さまのご来場を、お待ちしております!
【別海町】吹き上げ天井のある平屋の住宅見学会!

【別海町】吹き上げ天井のある平屋の住宅完成見学会!
【公開日】
平日ナイター:9月23日(金)
夜の住宅を見てみたい方に是非おすすめ!
-----タイムスケジュール-----
16:00~16:50
17:00~17:50
18:00~18:50
19:00~19:50
通常公開:9月24日(土)、25日(日)
-----タイムスケジュール-----
10:00~10:50
11:00~11:50
13:00~13:50
14:00~14:50
15:00~15:50
16:00~16:50
17:00~17:50
18:00~18:50
19:00~19:50
【会 場】
別海町中春別東町157‐47
※写真はすべてイメージです※
アールの垂れ壁が可愛く印象的な外観です。
リビングは吹き上げ天井によって、平屋とは思えない開放的な空間に。
お家の中心にファミリークローゼットがあり、家族みんなが使いやすい収納になります。
経済的なハイブリッド(LPガス×電気)の暖房・給湯システム、「VIVIDO (ヴィヴィッド) 」を設置。
【参考】エア・ウォーター北海道㈱ HP
ぜひ、実際のお家をご覧くださいませ♪
道東、中標津・釧路・北見の
木を愛し、木に愛される家づくり
ウッディークラフト → https://www.woody-craft.co.jp
